中古マンション

ライオンズマンション黒川第2[物件特徴]

 

値下げ物件

掲載情報更新日:2026年04月11日 次回更新予定日:2026年04月25日

1,740万円

月々のお支払い例


万円


計算

※ 月々のお支払例は目安の試算となりますので、金融機関や商品によって借入金額の条件は異なります。詳しくは店舗までお問合わせください。

所在地

名古屋市北区田幡2丁目

交通

名古屋市名城線『黒川』 徒歩2分 (約160m)
名古屋市名城線『名城公園』 徒歩12分 (約950m)
名古屋市名城線『志賀本通』 徒歩14分 (約1100m)

【ハウスドゥ北名古屋】お家探しキャンペーン実施中!0120-315-366までお問合せ下さい♪
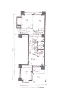
【間取り】

【間取り】

物件価格

1,740万円

月々のお支払い例

1,659.77

※金利1.20% 借入金額:物件価格、借入期間35年

物件の特徴

主な設備

都市ガス

給湯

コンロ三口

システムキッチン

追焚機能

トイレ

温水洗浄便座

室内洗濯機置場

冷房

暖房

エアコン2基

オートロック

モニタ付インターホン

モニタ付オートロック

防犯カメラ

出窓

クローゼット

収納スペース

シューズボックス

エレベーター

駐輪場

バイク置場

主な特徴

管理人巡回

角部屋

南向

小学校徒歩10分以内

即入居可

ペット相談

小型犬可

アピールポイント

〇オススメPOINT〇
最寄り駅徒歩2分、毎日の移動がスムーズな快適立地
モニタ付きオートロック・インターホンで防犯面にも配慮
小学校徒歩10分以内で通学に便利な住環境

〇周辺環境〇
名古屋市名城線「黒川」駅…約160m
名古屋市名城線「名城公園」駅…約950m
名古屋市名城線「志賀本通」駅…約1100m
金城小学校…約550m
志賀中学校…約1400m

お気軽にお問い合わせ下さい
【ハウスドゥ 北名古屋】

物件概要

担当エージェント:蓑手 理仁

住宅ローンのお話や、失敗しない不動産の購入方法までしっかりお伝えいたします♪ ・借入がある方・自営業の方・転職歴のある方・自己資金がない方・シングルの方もまずはご相談ください! 最善の方法を見つけられるよう尽力したします キッズスペース完備!おもちゃなどをご用意しております。安心してご来店ください♪

価格 1,740万円 間取り 3DK
物件種別 中古マンション
所在地 愛知県名古屋市北区田幡2丁目
アクセス 名古屋市名城線『黒川』 徒歩2分 (約160m)
名古屋市名城線『名城公園』 徒歩12分 (約950m)
名古屋市名城線『志賀本通』 徒歩14分 (約1100m)
専有面積 壁芯 61.15㎡ 所在階 7階建/1階部分
主要採光 南向 バルコニー
その他
権利 所有権
保証・評価
リフォーム
総戸数 29戸 面積
築年月 1978年(昭和53年)10月築 建物構造 RC
施工会社
管理会社 管理方式 全部委託 巡回管理
駐車場 【駐車場】なし
【バイク置き場】空有
料金:500円/月
【駐輪場】空有
料金:300円/月
都市計画 市街化区域
用途地域 商業
建ぺい/容積率 80% / 400% 土地国土法
法令制限
小学区 金城小学校 徒歩7分 (約550m) 中学区 志賀中学校 徒歩18分 (約1400m)
現況 引渡
管理費 16,020円/月 修繕積立金 11,310円/月
その他費用
備考 ■現況優先
■入居日・引渡日変更や付帯条件、別途料金等が発生する場合もありますのでご確認ください
■ペット相談(小型犬)
■バイク置場有り 500円/月
■駐輪場有り 300円/月
物件番号 4632586 取引態様 媒介

電話で問合せ

通話料無料

0120-315-366

定休日:火曜日・水曜日・年末年始
営業時間:9:00~19:00

物件番号をお伝えください

物件番号

4632586

【取扱い店舗】ハウスドゥ 北名古屋取扱い店舗情報
ナビ女性画像

【取扱い店舗情報】

ハウスドゥ 北名古屋
取扱会社:アルファス株式会社
所在地:〒481-0041 愛知県北名古屋市九之坪梅田70
フリーダイヤル:0120-315-366
電話番号:0568-26-3150 FAX:0568-26-3151
免許番号:国土交通大臣(1)第10568号
所属団体:(公社)愛知県宅地建物取引業協会会員
(公社)全国宅地建物取引業保証協会会員
東海不動産公正取引協議会加盟
定休日:火曜日・水曜日・年末年始
営業時間:9:00~19:00

もっとたくさん物件がみたい!という方へ

店頭で

店頭ではHPに掲載できない物件を併せて
109件をご案内できます!

Webで

ご希望にマッチした物件や、新着・値下げ情報を
即日メールにてお届けします!

ページトップ

ページトップ